
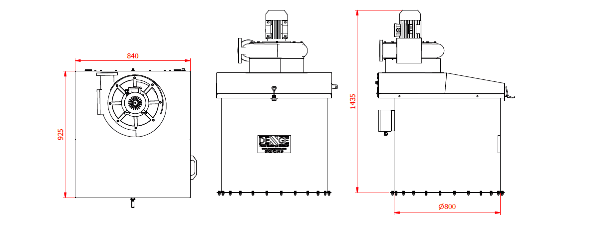
Silo Üstü Filtre | Silotop Jet Pulse Filtre Ölçüleri
Silo üstü filtre sistemleri, silolara yapılan dolum sırasında oluşan tozu etkin şekilde ayrıştırmak için kullanılan yüksek verimli jet pulse toz toplama ekipmanlarıdır. Jet pulse temizleme yöntemi sayesinde kartuş filtreler sürekli olarak temiz tutulur, böylece silo havalandırma performansı maksimum seviyede kalır.
Denge Proses olarak ürettiğimiz silo üstü filtreler; dayanıklı gövde yapısı, yüksek filtrasyon kapasitesi ve kolay bakım avantajı ile endüstriyel tesislerde uzun ömürlü kullanım sunar. Bu sayfada ürünlerimizin teknik ölçülerini, yapısal özelliklerini ve kullanım alanlarını detaylı şekilde bulabilirsiniz.
Öne Çıkan Ölçü ve Tasarım Detayları
-
Çap seçenekleri:
Ø300 – Ø3000 mm arasında geniş bir gövde ölçü skalası mevcuttur.
Farklı silo ebatlarına ve proses ihtiyaçlarına uyum sağlayacak şekilde özel ölçüler üretilebilmektedir. -
Kartuş / Torba filtre seçenekleri:
Sistemin kapasitesine göre 3’lü, 4’lü, 6’lı, 8’li veya daha yüksek adetlerde kartuş ve torba filtre kombinasyonları uygulanabilir. -
Filtre uzunlukları:
Montaj alanının müsaitliğine göre filtre boyu esnek olarak tasarlanır.
600 mm – 2000 mm arası kartuş veya farklı torba seçenekleri kullanılabilir. -
Toplam filtrasyon yüzeyi:
2 m² – 120 m² arasında değişen filtre yüzey alanı ile farklı debi ve proses koşullarına uygun modeller sunulur. -
Modüler tasarım:
Silo üstü kullanım için dikey silindirik modeller, toz toplama hatlarına montaj için ise yatay veya özel flanş bağlantılı modeller tercih edilebilir. -
Bağlantı nozulları:
Hava giriş – çıkış bağlantıları standart ölçülere uygundur ve talebe göre özel bağlantı tipleri üretilebilir. -
Yapısal dayanım:
Gövde ve kapak konstrüksiyonu, negatif ve pozitif basınç koşullarına dayanacak şekilde mühendislik prensiplerine göre güçlendirilmiştir.
Teknik Doküman Desteği
Tüm silo üstü jet pulse filtre modelleri için:
-
3D CAD çizimleri (STEP, IGES)
-
2D teknik resimler (PDF, DWG)
-
Montaj ve bakım kılavuzları
-
Basınç dayanımı ve kapasite hesap tabloları
talebe göre sağlanmaktadır. Bu sayede projelendirme, mühendislik hesapları ve montaj aşamaları çok daha hızlı ve kolay bir şekilde gerçekleştirilebilmektedir.







